





Goldest Key vă recomandă spre vânzare un apartament semifinisat cu 2 camere, balcon si parcare
Localizare: zona Petrom
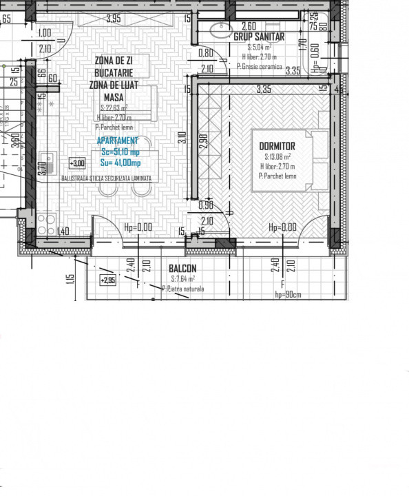
Compartimentare:
- dormitor cu acces pe terasă
- living cu bucătărie open space
- baie cu geam
- balcon
Parcare exterioară inclusă!
Suprafața utilă de 41mp + 7,6mp balcon.
Apartamentul se predă la stadiul de semifinisat:
* pereții cu o mână de glet
* instalațiile electrice și sanitare trase pe poziție
* interfon
* ușa metalică
* centrala termică proprie cu încălzire în pardoseală
Preț: cu parcare și TVA INCLUS
* se pot achiziționa și prin credit ipotecar
Pentru mai multe detalii nu ezitați să ne contactați.